- Boulonnerie – visserie – rivet – fixations


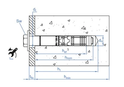
Cheville de sécurité avec anti-rotation en nylon. Pour charges lourdes dans le béton fissuré et non fissuré. Tête hexagonale. Fonctionnement par expansion et installation avec contrôle du couple. Homologué ETE Opt 1. Fabriqué en acier zingué.
Réf : SLPT18170
Réf : SLPT24140
Réf : SLPT24200